Geen producten in de winkelwagen.
Home/Produkte/Lade vaatwasmaschine/enkele Vaatwasmachines
Fisher & Paykel lade afwasmachine DD60SHTI9 geïntegreerd
1.799,00 €
inclusief 21% BTW, inclusief levering.
Vaatwasserlade kan worden geïntegreerd
Capaciteit
- 3 couverts
- Flexibel opbergsysteem
- Inklapbare inzetstukken
- Verstelbare bekerrekken
- Houder voor glazen met lange voet
- Maximale plaatdiameter 29cm
kracht
- 9 wasprogramma’s inclusief eco-optie
- Smart Drive ™ intelligente technologie
- Intelligente belastingssensor voor optimale prestaties
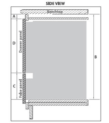
Dimensies
H 454 x B 599 x D 571 mm
niche
H 456 x B 600 x D 560 mm
Levertijd: 3 werkdagen
Vaatwasserlade met EXkleen deur
Capaciteit
– 3 couverts
– Flexibel opbergsysteem
– Opvouwbare inzetstukken
– Verstelbare kopjesrekken
– Houder voor glazen met lange steel
– Maximale plaatdiameter 29 cm
Vermogen
– 9 wasprogramma’s inclusief eco-optie
– Smart Drive ™ intelligente technologie
– Intelligente beladingssensor voor optimale prestaties
Veiligheid
Drietraps volledige bescherming tegen
waterlekkage Deurslot
Kinderbeveiliging
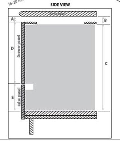
Afmetingen
H 454 x B 599 x D 571 mm
Nis
H 456 x B 600 x D 560 mm
SPECIFICATIESDD60SHTI9 FISHERPAYKEL Lade vaatwasser
Aansluiting
Aansluitspanning: 220-240 V
Afzekering apparaat: 10 A
Algemeen
EAN: 9415112812372
Bediening
Soort bedieningselementen: Tiptoetsbediening
Positie bedieningspaneel: Bovenzijde in de machine
Besturing: Elektronisch
Comfort
Indicator zout: Ja
Afwasmiddelherkenning: Ja
Aquasensor: Ja
Signaleert automatisch de vervuilingsgraad van het water en om wat voor soort vuil het gaat. Afhankelijk van de mate van vervuiling wordt bepaald of het spoelwater hergebruikt kan worden. De functie kan tot 4 liter water per afwasbeurt besparen.
Indicator glansspoelmiddel: Ja
Indicator einde cyclus: Akoustisch
Design
Basiskleur: Bruin
Efficiëntie en duurzaamheid
Energie-efficiëntieklasse: F
Eigenschappen
Bouwvorm: Inbouw
Maten en gewicht
Commerciële breedte: 60 cm
Hoogte: 410 mm
Breedte: 599 mm
Diepte: 573 mm
Minimale nishoogte: 480 mm
Prestaties en verbruik
Geluidsniveau
Geluidsniveau: 47 db
Het geluidsniveau is van groot belang, bijvoorbeeld bij een woonkeuken of open ruimte. Het geluidsniveau wordt altijd uitgedrukt in decibel.
Decibel: eenheid van de geluidsintensiteit. hoe hoger het getal hoe harder het geluid.
Reinigingsklasse: A
Droogklasse: A
Energieverbruik per jaar: 152 kW/uur
Het energielabel informeert u – krachtens een Europese richtlijn – kort en bondig over het elektriciteitsverbruik van het apparaat. De belangrijkste informatie van dit “Eurolabel” is de energieefficiëntieklasse, “A” duidt de zuinigste toestellen aan; “G” de toestellen die het meest verbruiken. Het stroomverbruik wordt bovendien aangegeven in kWh per jaar.
Waterverbruik per jaar: 2184 liter
Programma’s en functies
Extra functies: Sanitize-optie – “single touch” programmering – Halve belading – Snelle was- en extra droogopties.
De optie «Halve belading» reduceert het water- en stroomverbruik, hoewel beide sproeiarmen worden gebruikt. Daardoor kan een kleine hoeveelheid vaat zowel in de de boven- of onderkorf worden geplaatst.
Aantal programma’s: 9
Soort programma’s: Was optie voor real half-loading – Eco Options -Bespaar laatst gebruikte programma – Intensief Intensief Eco – Normaal – Normaal Eco Quick – Quick Eco Scania – Scania Eco – Voorwas
Automatisch programma: Ja
Kort programma: Ja
Uitgestelde start: Ja
Halve belading: Ja
Specificaties
Capaciteit maatcouverts: 6
Maximale diameter servies bovenrek: 290 mm
Flexibele inrichting: Ja
Bestekvoorziening: Korf
Technisch
Droogtechniek: SmartDrive-technologie Door een ventilator ondersteunde droging
Zekerheid
Waterbeveiligingssysteem: Drietraps hoogwaterbescherming
Waterontharder: Ja
De informatie bij dit product komt van de site van FISHERPAYKEL om je te informeren.
Wij kunnen de juistheid en/of volledigheid echter niet garanderen.
Fisher & Paykel
Fisher & Paykel staat bekend als leverancier van producten met zeer innovatieve designs en hightech features.
Er zijn momenteel meer dan 400 internationale patenten die de unieke aspecten van Fisher & Paykel-apparaten dekken.
Na grondig onderzoek heeft Fisher & Paykel exclusieve keukenapparatuur aan zijn assortiment toegevoegd.
Speciaal voor u hebben wij een selectie van lade afwasmachines van Fisher & Paykel samengesteld.
Hoogwaardige, oplossingsgerichte topproducten.
U heeft de keuze tussen vrijstaande koelkasten en volledig geïntegreerde modellen.
Dankzij de unieke ActiveSmart ™ -technologie, waarbij het vochtigheidscontrolesysteem, de koelventilatie en de vaste temperatuur tot 100% onder controle zijn, ontstaat er een perfect microklimaat voor groenten en fruit en alle andere voedingsproducten
| Gewicht | 60 kg |
|---|---|
| Afmetingen | 571 × 599 × 454 cm |
| GTIN | 9415112812594 |
Wees de eerste om “Fisher & Paykel lade afwasmachine DD60SHTI9 geïntegreerd” te beoordelen
Je moet ingelogd zijn op om een reactie te plaatsen.






















Beoordelingen
Er zijn nog geen beoordelingen.